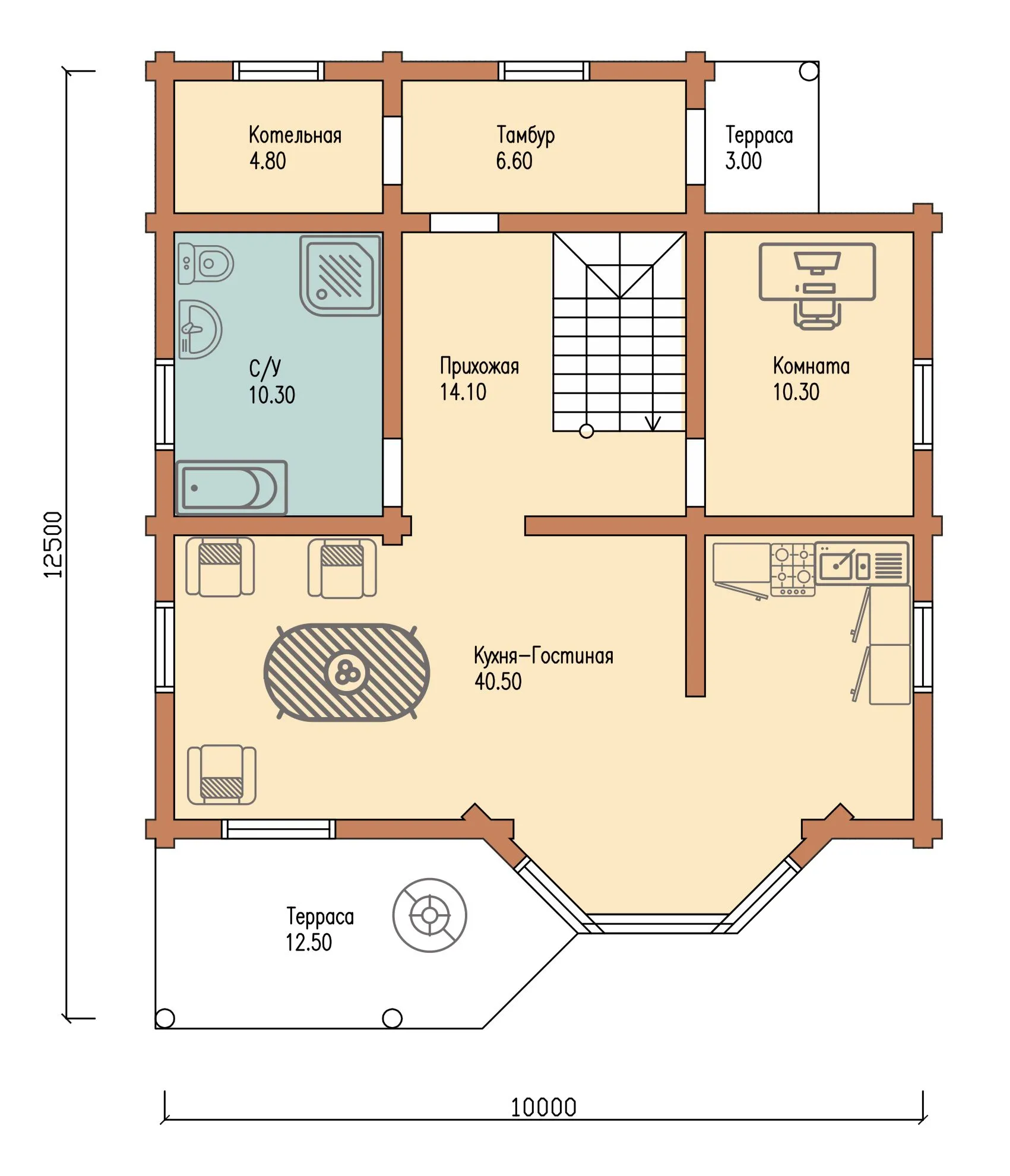
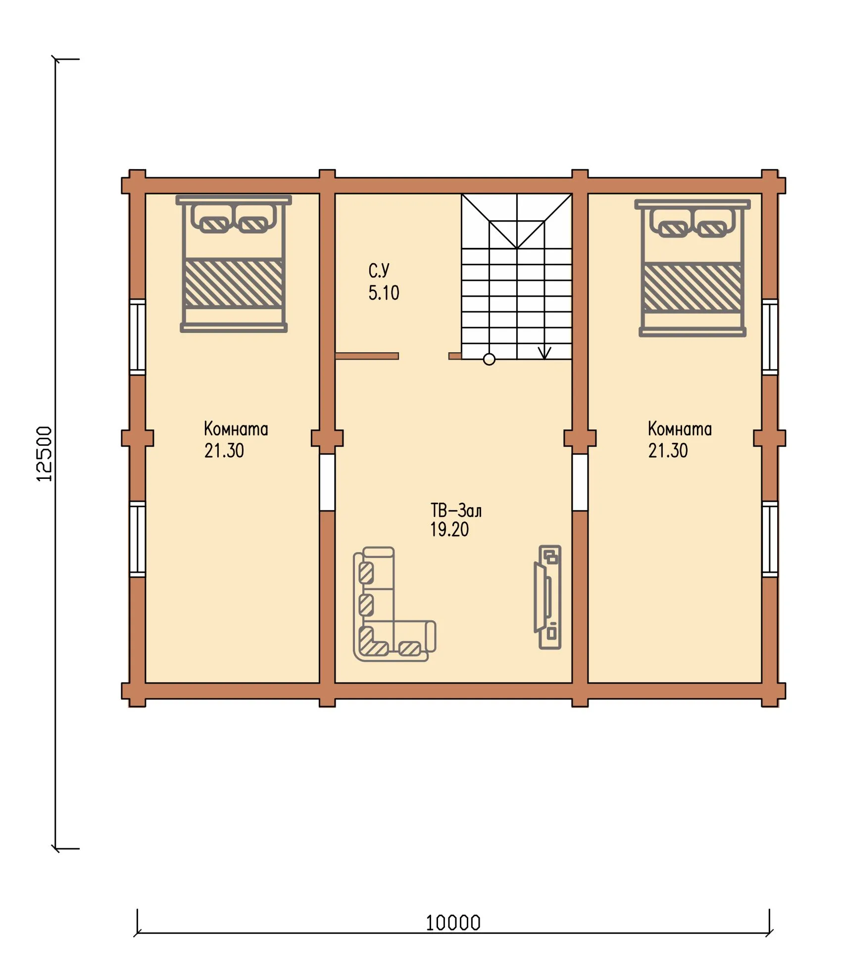
Дома из оцилиндрованного бруса:
Добро пожаловать в чудесный мир деревянных домов от компании ООО ПСК «ДревПроектСтрой», («Деревянные дома России»). Дома из оцилиндрованного бревна под ключ или под усадку, представляют собой надежное здание, обладающее привлекательным внешним видом, а также высокими эксплуатационными характеристиками. Дерево за многие столетия уже доказало свою стать владельцем собственного деревянного дома – это не только престижно, но и актуально состоятельность в качестве практичного, долговечного жилища для всей семьи.






















































