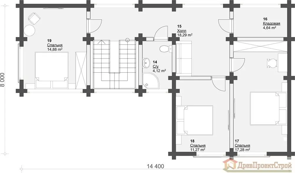
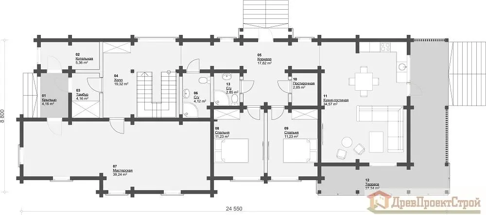
Дома из профилированного бруса:
Экологичность, устойчивость к внешнему воздействию, сохранение свойств натуральной древесины, красивый внешний вид, минимальная усадка, оптимальное соотношение по показателю «цена/качество», заводское производство.


Экологичность, устойчивость к внешнему воздействию, сохранение свойств натуральной древесины, красивый внешний вид, минимальная усадка, оптимальное соотношение по показателю «цена/качество», заводское производство.
ООО ПСК "Древпроектстрой" – ваш надежный партнер в сфере деревянного домостроения. Мы специализируемся на производстве высококачественных стеновых комплектов из оцилиндрованного бревна, профилированного бруса и клееного бруса. Наша продукция соответствует самым строгим стандартам качества и отличается высокой точностью изготовления, что гарантирует легкость и оперативность сборки на строительной площадке. Мы предлагаем индивидуальный подход к каждому клиенту, начиная с разработки проекта и заканчивая изготовлением стенового комплекта. Наши опытные специалисты помогут вам подобрать оптимальный вариант материала, учитывая ваши пожелания и бюджет.

Профилированный брус — высокотехнологичный строительный материал, как правило изготовленный из древесины хвойных пород: сосны, ели, лиственницы, кедра. При производстве бруса не используется клей и другие химические вещества.
















































