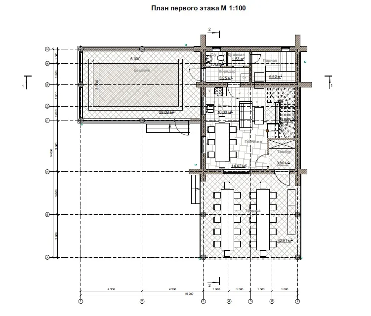
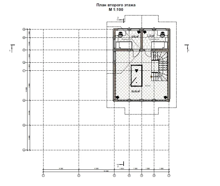
Эксклюзивность в каждом бревне!
Добро пожаловать в чудесный мир деревянных домов от компании ООО ПСК «ДревПроектСтрой», («Деревянные дома России»). Дом ручной рубки — это качественно подогнанный сруб из бревен ручной обработки привлекает своим внешним видом и ощущением надежности. Постоянное проживание в рубленом доме – это не только экологичность и комфорт, но и стремление к традициям, которые не теряют своей востребованности в современном мире.























































